Detail realizácie
V júni 2013 sme vyhotovili projekt pre stavebné povolenie a aj realizačný projekt pre rodinný dom. Je vhodný pre 4-člennú rodinu. Realizovaný bude v lokalite Rohovce - Šurianske jazerá. V prízemí domu sa kladie dôraz na prepojenie so záhradou, okrem hlavného vstupu do domu je tak možné vyjsť do záhrady dvojkrídlovými dverami z kuchyne alebo z obývačky. V prípade záujmu je možné obývačku úplne prepojiť s kuchyňou a vytvoriť tak moderný priestor podľa aktuálnych trendov. V podkroví je spálňa s francúzskym oknom, izba, pracovňa a kúpeľňa.

Technické informácie:
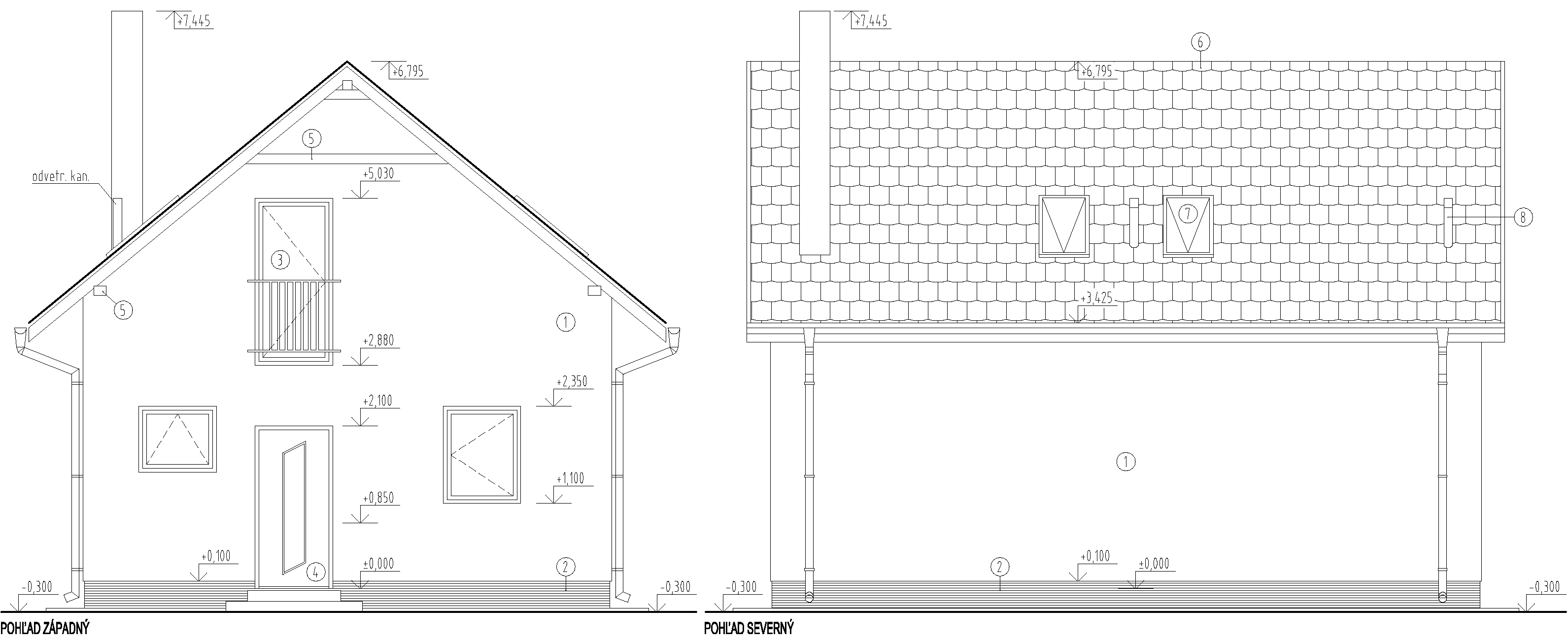
Jedná sa o 2-podlažný nepodpivničený rodinný dom s rozlohou 94,46m2 (prízemie + podkrovie) so 4 izbami, kuchyňou a 2 kúpeľňami. Prízemie tvorí obývačka, kuchyňa, kúpeľňa a technické zázemie domu ako denná časť a podkrovie s 3 izbami a samostatnou kúpeľňou ako nočná časť. Konštrukčne ide o stenový systém z pálenej tehly s hambálkovou sedlovou strechou. Strop je skladaný zo stropných nosníkov a vložiek. Pod schodiskom je ukryté technické zázemie s kotlom na prípravu teplej vody a vykurovaním. Atmosféru rodinného domu dotvára krb.